國家标準GB
代替(GB/T 12221-1989 GB/T 15188.1~ 15188.4-1994)
金屬閥門 結構長度
本标準修改採用ISO 5752;1982《法蘭管路系統金屬閥門 結構長度》。本标準與ISO 5752:1982的主要差異如下:
本标準的結構和編寫規則按照GB/T 1.1--2000的要求;
本标準採用ISO5752:1982中*2章的部分定義;
本标準去掉瞭ISO 5752:1982*4章的部分定義。
本标準與GB/T 12221-1989相比主要變化如下:
适用範圍從法蘭連接擴大到焊接端、對夾式、内螺紋、外螺紋,标準名稱也相應改變;
增加瞭焊接端、對夾式、内螺紋、外螺紋的結構基本長度系列和各類閥門的結構長度尺寸;
法蘭連接的閥門結構長度採用ISO5752:1982;
對原标準表1的結構長度基本作瞭修改,删除無數據的代号6和17系列;将代号6和17系列;将代号25系列不适用於法蘭連接形式,放到對夾連接閥門結構長度基本系列中;
删除原标準表2的同型系列閘閥結構長度表。
本标準代替标準2的同型系列閘閥結構長度表。
本标準代替GB/T 12221-1989《法蘭連接金屬閥門 結構長度》,GB/T 15188.1~15188.4-1994《閥門的結構長度》。
本标準由中國機械工業聯合會提出。
本标準由全國閥門标準化技術委員會(SAC/TC 188)歸口。
本标準代替标準的曆次版本發布情況
——GB/T 12221-1989 GB/T 15188.1~ 15188.4-1994。
金屬閥門 結構長度
1.範圍
本标準規定瞭法蘭連接閥門的結構長度、焊接端閥門的結構長度、對夾連接閥門的結構長度、内螺紋連接閥門的結構長度、外螺紋連接閥門的結構長度,及其結構尺寸的度偏差。
本标準适用於公稱壓力PN≤42.0Mpa,公稱通徑DN3mm~DN4000mm的閘閥、截止閥、球閥、蝶閥、旋塞閥、隔膜閥、止回閥等的結構長度。
2.規範性引用文件
下列文件中的條款通本标準的引用而成爲本标準的條款。凡是注是期的引用文件,其随後所有的修改單(不包括勘誤的内容)或修訂版均不适用於本标準,然而,鼓勵根據本标準達成協議的各方研究院是否可使用這些文件新版本。
GB/T 1047 管道元件DN(公稱尺寸)的定義和選用(GB/T 1047-2005,ISO 6078:1995 MOD)
GB/T 1048 管道元件PN(公稱壓力)的定義和選用(GB/T 1048-2005,ISO 7268:1996,MOD)
3.術語
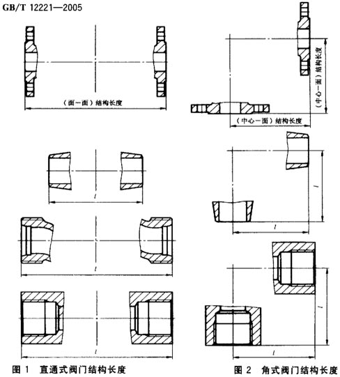
3.1直通式閥門結構長度
在閥體通道終端兩個垂直於閥門軸線平面之間的距離。
3.2角式閥門結構長度
在閥體通道某一終端垂直於軸線的平面與閥體另一終端軸線之間的距離。
3.3對夾式閥門
靠管道法蘭夾持固定密封結構的閥門。其結構長度指閥門通道終端兩個與管道法蘭接觸面之間的距離。
4.結構長度尺寸與限偏差
4.1公稱通徑數值按GB/T 1047 的規定;公稱壓力數值按GB/T 1048的規定 。
4.2直通式閥門結構長度如圖1如示;角式閥門結構長度如圖2所示;對夾連接閥門結構長度如圖3所示。
4.3結構長度尺寸
4.3.1法蘭連接閥門結構長度基本系列見表1。








