Z41F46-10/16C襯氟閘閥概述:
襯氟閘閥是一種*帶見的啓閉閥門,利用兩側面密封呈楔狀的閘闆來接通或截斷管路中介質,楔式閘閥不允許微量開啓在管路中作節流裝置用,以免因高速流動的介質沖蝕而加快密封面的損壞。手動、法蘭連接、明杆楔式剛性單閘闆,閥座密封面材料爲聚四氟乙烯,公稱壓力PN16~PN25,閥體材料爲灰鑄鐵襯氟塑料的閘閥。FEP(F46)、PCTFE(F3)襯氟閘閥适用在-50℃~150℃的各種濃度的王水、氫氟酸和各種有機酸、強酸、強氧化劑,FEP還适用於各種濃度的強堿有機溶劑以及其它腐蝕性氣體、液體介質的管路上使用。表面均勻包覆一層FEP。閥體通道内表面光滑,流體阻力小,CV值高,流通能力強,扭矩适中,採用四級密封結構並在密封面外配以耐溫抗老化的SI橡膠的彈性襯墊閥座,完全達到介質的零洩漏。
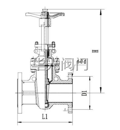
Z41F46-10/16C襯氟閘閥結構圖:
Z41F46-10/16C襯氟閘閥特點:
1、閥體有扁體和圓體兩種形狀:GB閥門採用圓體,ANSI磅級閥門DN≤300Lb採用扁體,DN≥400Lb採用圓體,閥體、閥蓋的内腔和閘闆、閥杆外表面等直接與介質接觸的部件,全部名襯FEP(F46)等氟塑料;
2、密封副爲FPF(F46)/ FEP(F46)或其它材料組合,摩擦系數小,啓閉力矩低;
3、填料採用PTFE(F4)标準填料,密封性能好,維修更換方便;
4、帶有彈性的閘闆,可補償閘闆密封面與閥座密封面之間楔角偏差,吻合度好,密封效果理想;
5、介質可從兩側任意方向通過閘閥,适用於介質方向可能改變的管路上作用啓閉裝置。
Z41F46-10/16C襯氟閘閥技術規範:
| 設計标準 |
GB12234 |
| 結構長度 |
GB12221 |
| 法蘭标準 |
JB/T79-94 |
| GB9113.1-26 |
| 檢驗試驗 |
GB/T13927 |
| 驅動方式 |
手動、電動、氣動 |
Z41F46-10/16C襯氟閘閥主要性能參數:
| 型号 |
PN |
工作壓力/MPa |
适用溫度/℃ |
适用介質 |
| Z41F46-16C |
16 |
1.6 |
≤150 |
腐蝕性介質 |
| Z41F46-16C |
| Z41F46-25C |
25 |
2.5 |
Z41F46-10/16C襯氟閘閥主要零件材料:
| 型号 |
材料 |
| 閥體、閥蓋 |
閘闆、閥杆 |
閥杆螺母 |
填料 |
手輪 |
| Z41F46-16 |
灰鑄鐵襯氟塑料 |
碳素鋼襯氟塑料 |
球墨鑄鐵或鋁青銅、鑄鋼 |
聚四氟乙烯 |
球墨鑄鐵、鑄鋼 |
| Z41F46-16C |
鑄鋼襯氟塑料 |
| Z41F46-25 |
Z41F46-10/16C襯氟閘閥主要外形尺寸:
Z41F46 型 PN16 氟塑料襯裏楔式閘閥
| DN |
L |
D |
D1 |
D2 |
b |
z×Φd |
H |
H1 |
D0 |
重量/kg |
| 40 |
240 |
145 |
110 |
85 |
16 |
4×Φ18 |
320 |
370 |
200 |
15 |
| 50 |
250 |
160 |
125 |
100 |
16 |
4×Φ18 |
350 |
405 |
200 |
20 |
| 65 |
270 |
180 |
145 |
120 |
18 |
4×Φ18 |
400 |
470 |
280 |
30 |
| 80 |
280 |
195 |
160 |
135 |
20 |
8×Φ18 |
460 |
560 |
280 |
38 |
| 100 |
300 |
215 |
180 |
155 |
20 |
8×Φ18 |
515 |
625 |
320 |
45 |
| 125 |
325 |
245 |
210 |
185 |
22 |
8×Φ18 |
570 |
690 |
360 |
70 |
| 150 |
350 |
280 |
240 |
210 |
24 |
8×Φ23 |
640 |
790 |
400 |
90 |
| 200 |
400 |
335 |
295 |
265 |
26 |
12×Φ23 |
700 |
910 |
450 |
150 |
Z41F46 型 PN25 氟塑料襯裏楔式閘閥
| DN |
L |
D |
D1 |
D2 |
b |
z×Φd |
H |
H1 |
D0 |
重量/kg |
| 40 |
240 |
145 |
110 |
85 |
16 |
4×Φ18 |
320 |
370 |
200 |
15 |
| 50 |
250 |
160 |
125 |
100 |
16 |
4×Φ18 |
350 |
405 |
200 |
20 |
| 65 |
270 |
180 |
145 |
120 |
18 |
4×Φ18 |
400 |
470 |
280 |
30 |
| 80 |
280 |
195 |
160 |
135 |
20 |
8×Φ18 |
460 |
560 |
280 |
38 |
| 100 |
300 |
215 |
180 |
155 |
20 |
8×Φ18 |
515 |
625 |
320 |
48 |
| 125 |
325 |
245 |
210 |
185 |
22 |
8×Φ18 |
570 |
690 |
360 |
76 |
| 150 |
350 |
280 |
240 |
210 |
24 |
8×Φ23 |
640 |
790 |
400 |
100 |
| 200 |
400 |
335 |
295 |
265 |
26 |
12×Φ23 |
700 |
910 |
450 |
165 |
訂貨須知:
一、①Z41F46-10/16C襯氟閘閥産品名稱與型号②Z41F46-10/16C襯氟閘閥口徑③是否帶附件以便我們的爲您正確選型。
二、若已經由設計單位選定Z41F46-10/16C襯氟閘閥型号,請按Z41F46-10/16C襯氟閘閥型号直接向我們華光閥門銷售部訂購。
三、當使用的場合非常重要或環境比較複雜時,請您盡量提供設計圖紙和詳細參數,由我們華光閥門專家爲您審核把關。